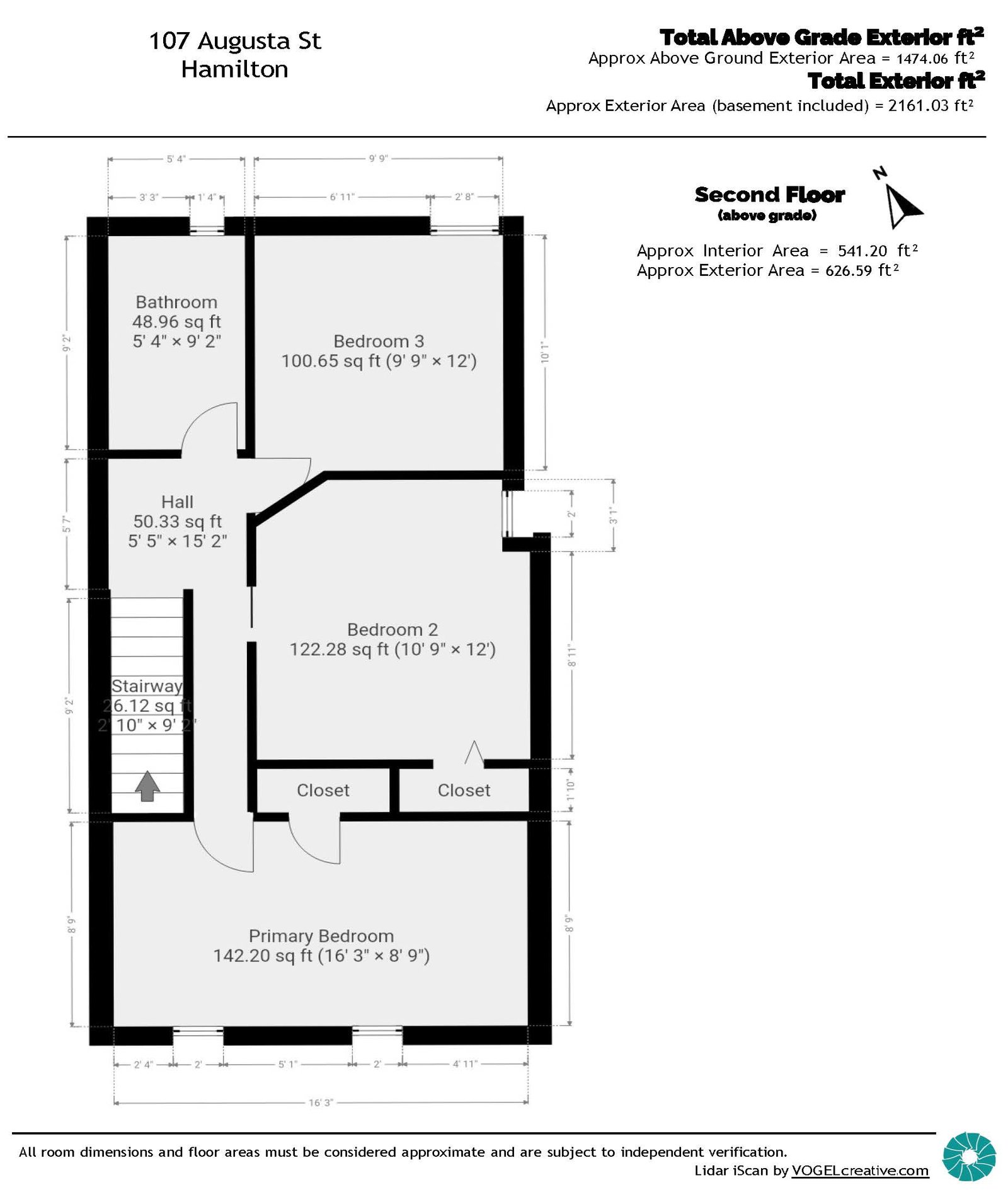
This classic solid brick semi is filled with charm and character. Located in the vibrant Corktown neighbourhood and just a short stroll to the many wonderful James St. S. restaurants, cafes & foodie destinations. Lots of room for everyone with 3 good sized bedrooms, spacious living and dining rooms, large renovated kitchen, impressive fully finished basement with its own private entrance and the real bonus - a beautifully landscaped double sized rear yard with modern detached garage!
This wonderful turn of the century home is perfect for entertaining family and friends. Featuring a large, brilliantly designed kitchen with super functional island, lots of cupboards and original exposed brick that adds flair and warmth to the décor. It is a heart of this fabulous home with easy access to the large formal dining room and spacious rear deck overlooking the gorgeous gardens. Upstairs the bedrooms are bright and sunny with tall sun-filled windows. The luxurious main bath features a sleek all-glass walk-in shower and the fully finished lower level is equally impressive with its own separate entrance - perfect as a teen retreat or in-law situation. This gem of a house, set in a warm and friendly community, is truly a wonderful place to call home!